18件(会員物件 3件)
-
会員限定
-
NEW
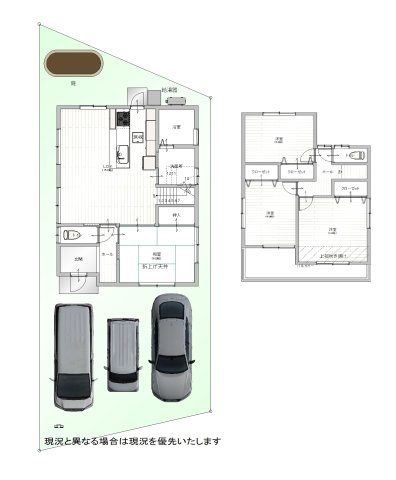
1,980万円
- / 93.96㎡ / 4SLDK /築18年 /2階建
- 駐車2台可
- オール電化
- リフォーム済
- 収納豊富
- システムキッチン
- カウンターキッチン
リビングダイニングが15帖以上あり、ゆったりとした空間を楽しむことができます☆3口コンロが付いているので、料理をたくさん作りたい時でも同時に進めることができて時短になります☆4SLDKなので様々な使い方が可能なサービスルームが付いています☆当社スタッフが堺市南区での住まい探しを全力でサポートいたしますので、不動産情報をお求めならお気軽にお問い合わせください(*^_^*)
-
会員限定
-
NEW
3,530万円
- / 193.66㎡ / -
- 都市ガス
- 電気有
- 閑静な住宅地
- 新婚さん向け
- ファミリー向け
- 駐車2台可
3,530万円で好条件かつニーズも高い土地はこちらです!建築条件無しの土地ですので、自由度が高いです!安心の前面道路6m以上の条件を備えております!駅までは徒歩14分でアクセス可能です!お客様にご満足いただける不動産探しを、Liamが真心こめてお手伝いいたします!お電話でのご連絡先は072-260-9605までお待ちしております!ぜひお気軽にお問い合わせください!
-
NEW
1,780万円
- / 119.63㎡ / 3SLDK /築46年 /2階建
- 都市ガス
- 陽当り良好
- 室内洗濯機置場
- 電気有
- 閑静な住宅地
- 新婚さん向け
新しい暮らしを応援します!余裕ある間取りの3SLDKで快適な毎日を送りましょう!南西角住戸は女性に好評の場所で風通しがよく快適です!Liamでは、和泉市にある豊富な不動産情報をご用意しておりますので、072-260-9605からご希望をお伝えください!
-
会員限定
-
NEW
3,950万円
10階 / 83.46㎡ / 3LDK+S(納戸) /築23年 /20階建
- 陽当り良好
- エレベーター
- リフォーム済
- ウォークインクロゼット
- バス・トイレ別
- 室内洗濯機置場
システムキッチンは使いやすく汚れにくいのでご好評です!20階建ての建物もお探ししますので、ご安心ください!十分な収納スペース付きの3SLDKの物件はご家族の多いファミリーの方にもオススメです!もしもの事態を抑止する、オートロック機能が備わっています!不動産に関することはLiamにお尋ねください!経験豊富な当社スタッフが、しっかりとお客様をサポートいたします!
-
NEW
4,498万円
11階 / 103.68㎡ / 4LDK /築23年 /20階建
- バス・トイレ別
- 室内洗濯機置場
- フローリング
- 電気有
- システムキッチン
- カウンターキッチン
専有面積103.68㎡もあるので有効活用しましょう!駅が2駅利用できるので利便性の高い物件です!地上20階建てで、住みやすい物件です!共有部分も清潔感があり、綺麗な中古マンションです!堺市南区、南海電鉄泉北線光明池近辺にあるお住まいを公開しております!お問い合わせは072-260-9605またはliam.eigyo@gmail.comまでご連絡ください!
住みやすい空間の条件の1つに前面道路が6m以上あるところを入れてみては!土地面積は306.98㎡(公簿)です!建築プランの自由度が高い、平坦な地勢です!土地の購入をお考えの方、コチラの売地をご覧ください!堺市南区にある土地の事なら、Liamにお任せください!オススメは南海電鉄泉北線栂・美木多周辺です!是非一度土地をご覧くださいませ!